dmp
English
WORKS
PEOPLE
CRAFT
NEWS
ABOUT
about dmp
history
organization
service
globe
BLOG
CONTACT US
RECRUIT
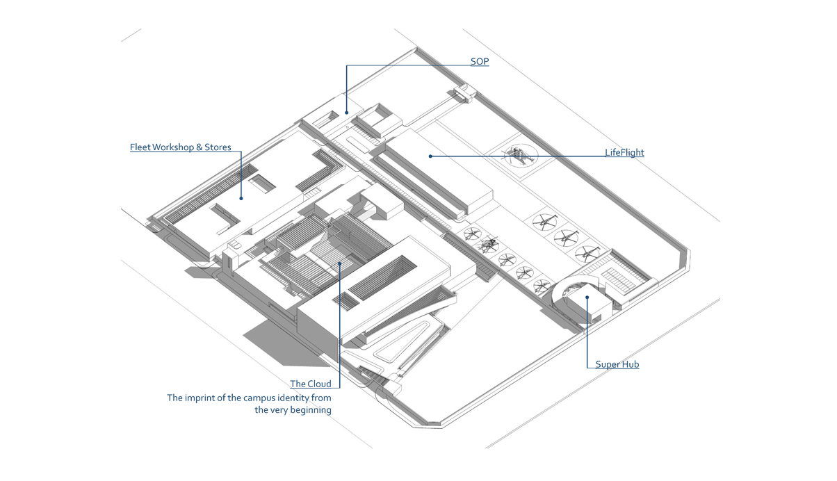
엠뷸런스 서비스센터 및 지원시설
New Ambulance Service HQ and Service Station, HMC
facebook
kakao story
twitter
People
Fold
한충헌
이우진
Project facts
Fold
대지위치 :
카타르
대지면적 :
99,739.34㎡
건축면적 :
28,987.00㎡
연 면 적 :
62,560.00㎡
설계년도 :
2014
Related to this project
목록보기